《室内专题设计》是我校环境设计专业的专业核心课程,共64学时,4学分,开设于大三年级上学期。在课程开设之前,学生已掌握《建筑制图》、《室内设计原理》、《装饰材料与施工工艺》等课程知识。
该课程以此为基础,将进一步深入系统地学习适应新时代需求的智能化与适老化居住空间室内设计专题,并创新性融入AIGC技术作为设计辅助与赋能工具,从需求、空间、结构、尺度、材料等方面深入理解居民行为与空间的关系,将具体生活需求转译为空间语言,从而完成较为完整的初步课题设计。
课程采用情境体验方式,以专任教师、企业导师、甲方三方共建课程团队,与国内知名室内设计公司、家居卖场及新锐设计师合作,为学生搭建校外实践平台。本课程特邀清华大学建筑学院博士郑远伟、逅屋一舍室内设计公司创办人熊川纬等专家参与授课,共同指导专业知识在实际项目中的应用,并协助建设课程案例库,并借此为优质的实习和就业创造条件。
课程目标
知识目标
通过本课程学习,使学生掌握智能化与适老化居住空间设计的流程、方法及基本原则,了解室内设计在智慧生活与适老关怀领域的发展趋势与前沿技术,熟练掌握人体工程学、FF&B 概念设计等相关理论在智能化及适老化居住空间中的具体应用。
能力目标
能够运用多媒体软件与专业制图工具,协作完成具备智能化功能与适老化特征的居住空间专题设计方案;具备与团队成员有效沟通、协作推进项目的能力,能够共同完成调研汇报或设计成果的展示与表达。
素质目标
树立以人为本、融合科技与关怀的设计价值观,增强文化自信与职业责任感,能够用设计语言打造家,助力健康生活;提升方案表述能力、组织沟通能力及团队协作素养,形成具备社会意识与创新精神的设计素质。
校企联合
企业导师

熊川纬
武汉逅屋一舍室内设计有限公司 创始人 创意总监
武汉设计联盟学会青年会成员
40 UNDER 40中国(湖北)设计杰出青年(2017-2024)
第五届法国双面神“GPDP AWAED”国际设计大奖
第九届“筑巢奖”专业组住宅空间评委成员
CCTV-2《交换空间 · 空间榜样》嘉宾设计师
郑远伟

清华大学工学博士,华中科技大学建规学院讲师
现担任中国老年学和老年医学学会标准化委员会副总干事
中国建筑学会适老性建筑专业委员会会员
长期从事居住建筑的理论研究和设计实践。在服务型老年公寓、老年人照料设施、居家适老化改造、居住建筑内装工业化等细分领域具备丰富的科研和实践经验。
主持或参与完成国家、地方政府和企业委托课题10余项,参与编制居住建筑相关国家、地方和行业标准近10项。
译有《老龄化时代的居住环境设计——协助生活设施的创新实践》,参与编写《养老设施建筑设计详解》、《国内外城市社区居家适老化改造典型案例》、《居住建筑设计原理》(第3版)等专业著作。
摩根moorgen(武汉)全屋智能




摩根全屋智能定制,从智能科技的本源出发,致力于将功能与情感、科技与人文、全局与细节无缝融入家居体验。从“摩根智能”到“摩根生活”,既是对理想智慧家庭空间的持续探索,也是一种高效而温暖的人居方式。
项目资源
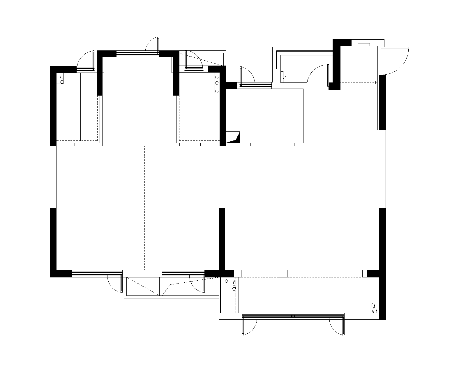
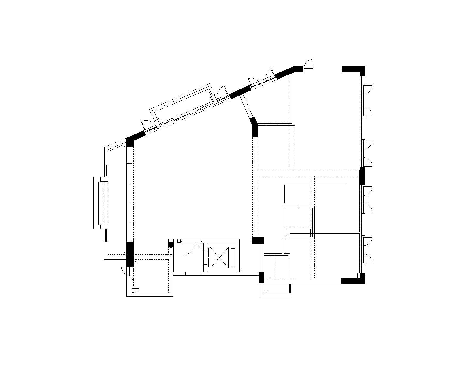
本次课程将聚焦于三种具有代表性的家装户型展开室内空间改造实践,分别为:天创长江云栖风华(117㎡)、武汉华润润府(143㎡),以及外滩荟(280㎡)。这三类户型覆盖了紧凑型、改善型与高端大平层的典型空间结构,有助于学生在多维度场景中深化设计能力。
原始图纸如下:

户型A:天创长江云栖风华(117㎡)

户型B:武汉华润润府(143㎡)

户型C:外滩荟(280㎡)
教学过程
本课程根据“宜居安居”的居家需求及学情来调整课程内容与方法,采用“一轴两核三引导”教学法,紧密结合学情与市场需求,用“三讲三行”的教学引导,做到“企业导师言行、项目现场践行、设计方案执行”,系统构建“学-用-展-评-转”的教学闭环。通过项目驱动、情境创设与校企融合,引导学生完成从概念到落地的居住空间全案设计,全面提升学生在智慧人居与适老关怀领域的综合设计能力。
第一阶段——知识赋能
本课程结合学习通搭建线上线下混合式教学模式,在线上引用线上自录资源,建立符合学情动态变化的spoc线上资源库,形成课程智慧图谱,将知识图谱建设的成果进行呈现。基于学习通平台,优化建成了具有前沿研究价值的活页式教材、参考案例、项目题库、优秀作业等,提供多元化课后学习渠道。线上资源含52段音视频资源,43篇学术前沿阅读资料,50个最新企业设计案例库,以及作业、讨论话题资源。同时上线楚课联盟线上平台进行传播,向其他专业或外校学生推广课程,增加专业课程的开放性与共享性。

除此之外,引入环境照明基础虚拟仿真实验,将设计图转化为沉浸式虚拟场景,运用虚拟仿真手段,使学生直观体验空间照明可视化效果的演示,完成符合设计标准要求的实验和操作。

第二阶段 -- 校企助力
积极引入校企协作机制,邀请清华大学建筑学院博士郑远伟、武汉逅屋一舍室内设计有限公司创办人熊川纬等校内外专家参与授课,以讲座的形式深化学生对智能化与适老化设计要素的理解。



第三阶段 -- 实践反哺
依托阶段性评图与方案指导,引导学生将前期所学的智能化、适老化设计理念系统整合,协作完成具有完整性与创新性的居住空间全案设计。本阶段强调从理论认知向设计实践的转化,提升课程的专业深度与综合应用能力,真正实现“学—用—展—评—转”的教学闭环。



第四阶段 -- 年级评图
课程在情景创设、数据挖掘、产教协作等方面进行了有益的探索,提出了校企联动式教学模式,建立“学用展评转”一体化教学机制,举办线上下课程成果展。




课程评图过程中武汉逅屋一舍室内设计有限公司创始人熊川纬、清华大学建筑学院博士郑远伟,围绕智能化居住空间、适老化创新设计等前沿趋势展开分享,激发同学们对当代室内设计师职业角色的深入思考。本次评图以模拟实战与竞赛形式组织,引导学生积极运用所学理论,在方案中综合回应智能、适老、材料与空间等多重要求,推动设计成果向行业标准靠拢。






通过专家点评、真题演练与互动复盘,学生不仅提升了方案表达能力,也在真实情境中巩固了全案设计与技术整合能力,实现了“教学—实践—评价—反馈”的良性循环。
作品展示
环艺B2301班 周紫涵
设计理念:《木眠》以“温润古韵,柔雅新生”为核,将东方意蕴与奶油质感相融。奶油白、奶杏色与浅驼色交织奠定静谧基底,木质元素搭配软质单品与大理石,达成柔韧平衡,细节藏古韵巧思,打造舒适松弛又具中式雅致的诗意居所。

环艺B2301班 刘怡萱 张许婕
设计理念:空间布局先让动线流畅,客厅、餐厅敞成一体,再以材质与色彩的微妙差异轻轻划分,通透与隐私同存。照明系统以多层次铺展:中心暖光匀匀洒下,局部重点光悄然提亮装饰细节,功能区各取所需。色彩把深棕、米色、灰色排成主调,原木色穿插点缀,既托住中式厚重,又用柔和中性色平衡现代感。家具与软装精选新中式经典款,内藏现代人体工学,复古线条与舒适并存。天然木材、石材、布艺交错铺陈,自然质感触手可及。至此,客户偏好与现代便利相扣,一个兼具文化底蕴与实用美观的理想家居空间完整落成。

环艺B2301班 唐德旺 刘亚宁
设计理念:本设计方案以"微光叠境"为核心设计理念,通过高级灰与奶油白的色彩基底,结合温润木饰面、灵动天然石材纹理与精致金属细节,构建出兼具现代意式美学与丰富质感层次的居住空间。智能科技作为空间的隐藏脉络,通过嵌入式传感器、隐藏式音频系统与可调光照明系统的协同工作,实现"会客"、"休息"等场景的一键自由切换。全屋智能环境系统保持实时联动,从恒温恒湿的体感呵护到光影氛围的精准营造,所有技术都在后台静默运行,确保居住者获得无感化的智能体验。采用的智能调光系统能够模拟自然光线的变化规律,在不同时段提供最适宜的光照环境。

环艺B2302班 黄君莉 田圆梦
设计理念:适老化空间的现代中古风,既保留中式传统的温润雅致,又融入现代简约的实用巧思。将古朴木作、柔和暖调与适老细节相衬,既有东方美学的沉静韵味,又以无障碍布局、适老辅具暗藏人文关怀,让复古质感与适老功能相融,是对舒适晚年生活的温柔诠释,既显雅致底蕴,又让实用与温度并存。


环艺B2302班 罗兴豪 汤宇翔
设计理念:本设计以“鎏金岁月”为核,整体采用中性简约偏中古风设计,聚焦四口之家的宜居需求,将温暖质感与实用功能深度融合。空间以柔和米金为主调,搭配原木肌理与浅灰软装,既彰显“鎏金”的温润质感,又传递岁月沉淀的安稳感。布局上采用开放式客餐区,最大化互动空间,满足亲子陪伴与家庭欢聚需求,细节处融入圆角设计、隐藏式收纳与柔和照明,兼顾安全与整洁。


环艺B2302班 谢佳妮 孙苗苗
设计理念:本设计以简约高级的意式美学为核心基调,聚焦单身男性独居生活的核心需求,通过科学合理的空间规划、灵活实用的功能布局与精致细腻的细节处理,全方位提升居住的舒适感、自主性与品质感。整体空间打破传统分区的刻板界限,巧妙划分为复合卧室套间、开放式起居区及功能型厨卫三大核心区域,既满足日常睡眠、洗漱、烹饪等基础需求,又兼顾办公、休闲、临时社交等多元场景的切换。


环艺B2301班 张许婕
为期一学期的室内设计专题课程,让我对专业有了更深刻的认知。课程不再局限于基础软件操作,而是聚焦实际项目全流程,从空间功能规划到风格定位,从材料选型到光影设计,每一个环节都充满挑战与收获。通过模拟住宅、商业空间设计实操,我学会了将理论知识转化为设计方案,也明白了室内设计不仅是美学表达,更要兼顾实用性与人文关怀。小组合作中,我们相互碰撞创意、弥补短板,在老师的指导下不断优化方案,既提升了沟通协作能力,也培养了严谨的设计思维。这段学习让我意识到,优秀的设计需要兼顾细节与全局,平衡创新与落地。未来,我会继续积累实践经验,打磨专业技能,努力成为兼具审美与责任感的设计从业者。
环艺B2301班 刘怡萱
我最大的收获在于对“全过程设计”的理解。从前期与虚拟客户的要求确定,到概念构思、方案深化,再到材料选择、灯光设计和预算控制,基本完整地走完了一个项目流程。一个优秀的设计方案,不仅要有惊艳的效果图,更要具备坚实的落地性。每一个细节,如收口处理、材料搭配的物理与心理感受,都需要深思熟虑。团队协作与专业表达也变得至关重要。在与组员的交流中,我们能够清晰地阐述自己的设计理念,倾听与吸纳他人的建议,理解了沟通在设计中的桥梁作用。总而言之,这门课像一位严格的导师,将我以往零散的知识点串联成一个有机的整体。它锻炼了我的综合设计思维,让我从一个单纯追求形式美的学生,开始向一个考虑周全、脚踏实地的准设计师转变,为我未来的专业道路打下了坚实的基础。
环艺B2302班 田圆梦
通过室内专题设计课程我们小组针对的是适老化项目,我对适老化设计的认知彻底被重塑。从前我对适老空间的理解,仅停留在“加扶手、做防滑”的表层改造,总盲目追求视觉上的“整洁好看”,却从未细想:老人起身时扶手高度是否适配他们的臂长?起夜灯光会不会晃得他们眼晕?弯腰取物的柜子高度是否让他们吃力?这次项目让我明白,装修老人房远不止“摆家具”那么简单:要顺着老人的行动习惯调整家具间距,避免磕碰;根据视力退化的特点选低饱和柔和色系,减轻视觉负担;为独居老人暗藏紧急呼叫装置,兼顾安全与体面;甚至要结合他们的生活记忆保留熟悉布局,不让空间显得陌生。这让我读懂了设计师的责任:不是做“好看的造型”,而是让空间与使用者“契合”——比如把常用水杯的台面调到80cm、把开关换成大按键,这些不起眼的细节,才是老人住得安心的关键。课程里我练熟了用软件细化适老尺寸,摸清了不同身体状态的老人适配的空间风格,更学会了放下“我觉得”,去观察老人“用着方便”的真实需求。如今我深知,好的适老化设计从不是冰冷的改造,是让老人摸到熟悉的木纹、踩到稳当的地砖时,能踏实说出“这像我自己的家”——这份藏在细节里的温度,才是设计真正的内核
环艺B2302班 黄君莉
通过室内专题设计课程我们小组针对的是智能化项目,我对室内智能化设计的认知彻底重塑。从前我仅将其理解为“装语音助手、连智能家电”的表层叠加,盲目追求“功能越多越高级”,却忽视了用户的实际使用体验。此次项目让我明白,智能空间打造远不止“连设备”:需结合方言识别与声纹解锁,同时保留实体大按键,适配不同年龄段操作习惯;夜间起夜自动开启15lux低亮度地脚灯,厨房燃气泄漏联动排气扇,以智能规避安全风险;简化APP界面,常用场景一键触发,降低使用门槛。
这让我读懂,设计师的责任不是堆砌炫酷技术,而是让智能与使用者适配——唤醒词用家人昵称、设备响应延迟优化至0.5秒内,细节才是舒心关键。课程中我熟练搭建智能联动逻辑,摸清不同群体功能适配标准,更学会放下“我觉得高级”,聚焦用户“用着省心”的核心需求。好的智能化设计,是让技术自带温度,让家人无需复杂学习便享便捷舒适。
摄影 周紫涵 刘怡萱
图文编辑 谌果钰 张雪琦 黄君莉
教学团队 沈婧 樊飞
审核老师 沈婧